Добро пожаловать на http://vipplan.ru

Випплан Советск - это тысячи проектов домов в нашем каталоге!

Вы всегда сможете найти для себя проект дома вашей мечты! Даже если этого не случилось, мы готовы в любую минуту предложить проект индивидуального дома.

Забыли пароль?
Вы еще не регистрировались?

Перейдите по ссылке ниже на страницу регистрации.

Регистрация...

Внимание!!!

В проектную документацию могут быть внесены изменения любой сложности, в соответствии в Вашими пожеланиями!

Полезные статьи

Выбор проекта дома в Советске

Выбор проекта дома может завести семью в тупик. Прийти к одному конкретному мнению всем членам семьи очень сложно. Кому-то по душе, чтобы дом был большой и одноэтажный, с красивой террасой или верандой, кому-то хочется жить в двухэтажном доме с балконом. Детям, в основном, нравятся дома с мансардой....

Закладка фундамента дома

Закладка фундамента является одним из первых и самых главных этапов строительства любого дома. Все здание опирается именно на эту часть конструкции. Поэтому главная функция фундамента заключается в том, чтобы нести на себе весь вес несущих стен и кровли, а значит предотвращать появление перекоса стен, проседание сооружения, что неизбежно приводит к образованию трещин в стенах здания и в фундаменте....

Проекты домов и коттеджей > Каталог проектов домов > Уютный и экономный дом с мансардой Vg1485

Уютный и экономный дом с мансардой Vg1485

Уютный и экономный дом с мансардой
Зарегистрируйтесь

Проект № Vg1485


Техническое описание
Общая площадь: 148.15 м2
Высота здания: 6.46 м
Размеры дома: 16.84м×14.24м
Цокольный этаж: нет
Гараж: нет
Мансарда: нет

Kонструкция
Фундамент: Мнолитный ж/б
Перекрытия: Деревянные балки
Материал стен: Бетонные блоки

Архитектурный раздел
Конструктивный раздел
АР+КР - 52 000 (Со скидкой 20%)
Проект индивидуального одноэтажного жилого дома с размерами 16,84 x 14,24 м. Наружная отделка здания – клинкерная плитка, деревянные панели. Цоколь – клинкерная плитка Фундамент – монолитная ж/б плита Наружные стены запроектированы из: газосиликатных блоков, утеплителя и фасадной штукатурки.. Внутренние стены и перегородки – из газосиликатный блок. Перекрытие чердачное – деревянные балки. Крыша – многоскатная. Материал кровли – металлочерепица Окна - металлопластиковые, выполненные по индивидуальному заказу.
Генплан застройки участка / Паспорт проекта 7000 руб / 10000 руб
Инженерный раздел (полный) 74000 руб
Смета на строительство 37000 руб
Теплотехнический расчет материалов стен Бесплатно
Стоимость проекта со незначительнми изменениями 61300 руб
Стоимость проекта со средними изменениями* 72400 руб
Стоимость проекта со значительными изменениями** 75400 руб

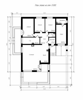
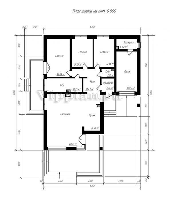
План первого этажа


Прихожая — 3,76 м2
Холл — 10,47 м2
Гостиная — 40,21 м2
Кухня — 14,16 м2
С/у — 10,21 м2
Спальня — 19,04 м2
Спальня — 12,78 м2
Спальня — 12,66 м2
Прихожая — 3,76 м2
Бойлерная — 4,62 м2
Гараж — 18,09 м2
Уютный и экономный дом с мансардой Уютный и экономный дом с мансардой Уютный и экономный дом с мансардой Уютный и экономный дом с мансардой

Модификации проектов

Внесение изменений и привязка к участку строительства

В любой из проектов от компании VIPplan - Советск по вашему желанию могут быть внесены изменения в материалы стен, материалы наружной отделки дома, а также будет произведена адаптация проекта под конкретный регион строительства (с учетом грунтов региона, геологических особенностей вашего участка и местных климатических условий) - БЕСПЛАТНО !!! (кроме проектов со скидкой и проектов наших партнеров).

Любой из проектов, размещенных на сайте sovetsk.vipplan.ru мы можем выполнить из требуемых вам строительных материалов: ячеистый бетон (газобетон, пеноблок), керамоблок, кирпич, шлакоблок, бетонный блок, дерево (брус, клееный брус), каркасная технология (деревянный каркас, металлокаркас (ЛСТК)).

Фасад дома и его наружную отделку так же возможно выполнить с применением различных облицовочных материалов: структурной штукатурки, (с утеплителем и без), сайдингом (пластиковый или металлосайдинг), фиброплитами, кирпича.

 
6 Избранные
проекты

Доставка проектов по России: Москва (Московская область), Санкт-Петербург (Ленинградская область), Краснодар, Ростов-на-Дону, Ставрополь, Сочи, Волгоград, Новосибирск, Белгород, Брянск, Воронеж, Саратов, Хабаровск, Астрахань, Нальчик, Владикавказ, Екатеринбург, Тюмень, Самара, Нижний Новгород, Казань, Пермь, Уфа, Челябинск, Красноярск, Ханты-Мансийск, Иркутск, Курган, Оренбург, Омск, Томск, Барнаул, Новокузнецк, Кемерово, Абакан, Чита, Якутск, Южно-Сахалинск, Петропавловск-Камчатский и страны ближнего зарубежья: Белоруссия, Украина, Казахстан